$1,000
Fergus Falls, MN 56537
MLS# 6350354

1 / 16
Property Description
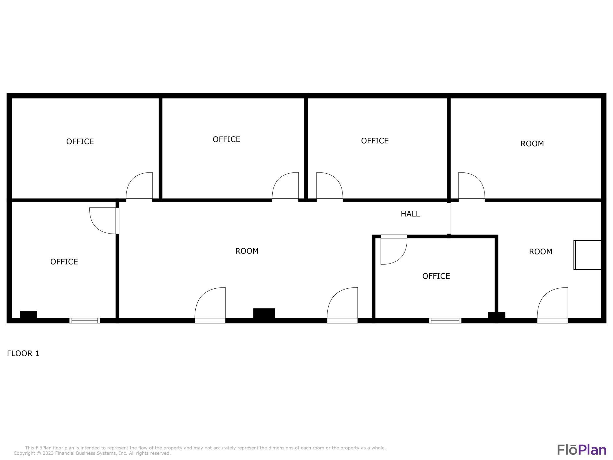
For Lease - 1,298 square feet of office space on the lower level of Lincoln Centre in downtown Fergus Falls. This suite features entry/reception area, 6 private offices, along with a separate staff entrance. Monthly rent includes heating / cooling / electricity and access to common bathrooms in the building. Landlord to re-paint space to a more neutral color and will install new luxury vinyl plank for lessee, or provide a flooring allowance of $2/sf.
Details
Maps
Contract Information
Owner is an Agent?: No
Auction?: No
Status: Active
Current Price: $1,000
Original List Price: 1000
Contingency: None
ListPrice: 1000
List Date: 2023-04-04
Office/Member Info
Association: GLAR
MLSID: RMLS
General Property Information
Lot Measurement: Acres
Multiple PIDs?: No
Other Parking Spaces: 0
Owner Occupied: No
Waterfront Present: No
Year Built: 1962
Yearly/Seasonal: Yearly
Zoning: Business/Commercial
Lot Dimensions: 75x142
Acres: 0.24
Foundation Size: 1298
Garage Stalls: 0
For Sale or Lease: For Lease
Location, Tax and Other Information
Legal Description: SECT-34 TWP-133 RANGE-043 ORIGINAL PLAT-FERGUS FALLS LOTS 13, 14 & 15 BLK 20
Listing City: Fergus Falls
Map Page: 999
Municipality: Fergus Falls Twp
Rental License?: Yes
School District: Fergus Falls
School District Phone: 218-998-0544
County Abbreviation: Suite 17
Zip Plus 4: 3901
Property ID Number: 71003990289000b
Tax Year: 2024
Tax Amount: 19074
In Foreclosure?: No
Potential Short Sale?: No
Lender Owned?: No
Directions & Remarks
Public Remarks: For Lease - 1,298 square feet of office space on the lower level of Lincoln Centre in downtown Fergus Falls. This suite features entry/reception area, 6 private offices, along with a separate staff entrance. Monthly rent includes heating / cooling / electricity and access to common bathrooms in the building. Landlord to re-paint space to a more neutral color and will install new luxury vinyl plank for lessee, or provide a flooring allowance of $2/sf.
Directions: From Lincoln Ave and Union Ave, East on Lincoln Ave to property on right.
Accessible
Accessible Elevator Installed: 1
Hallways 42"+: 1
Air Conditioning
Central Air: 1
Assessments
Assessment Balance: 1376
Tax With Assessments: 20450
Basement
Foundation Dimensions: 59x22
Building Information
Building Finished SqFt: 1298
Building SqFt: 1298
Construction Status
Previously Owned: 1
Exterior
Brick/Stone: 1
Foundation
Concrete Block: 1
Fuel
Natural Gas: 1
Heating
Boiler: 1
Forced Air: 1
Lease Details
Land Leased: Not Applicable
Gross: 1
Lease Amount Type: Monthly
Lock Box Type
Lock Box Source: GLAR
None: 1
Miscellaneous Information
Homestead: No
Ownership
Fractional Ownership: No
Parking Characteristics
Paved Lot: 1
Public Survey Info
Range#: 43
Section#: 34
Township#: 133
Rental License Type
Standard: 1
Road Frontage
City Street: 1
Paved Streets: 1
Sale Options
Sale Includes: Other
Sewer
City Sewer/Connected: 1
Unit Details
Total Units: 1
Water
City Water/Connected: 1
Tenant Pays
Broadband: 1
On Site Utilities
Electric Common: 1
Heating Common: 1
Hot Water Common: 1
CMU Style
Apartments and Retail: 1
Current Use
Vacant: 1
Location Tax and Other Information
House Number: 125
Street Direction Prefix: W
Street Name: Lincoln
Street Suffix: Avenue
Unit Number: Suite 17
Postal City: Fergus Falls
County: Otter Tail
State: MN
Zip Code: 56537
Complex/Dev/Subdivision: Original Plat/Fergus Falls
Property Features
Accessible: Accessible Elevator Installed; Hallways 42"+
Air Conditioning: Central Air
CMU Style: Apartments and Retail
Construction Status: Previously Owned
Current Use: Vacant
Exterior: Brick/Stone
Foundation: Concrete Block
Fuel: Natural Gas
Heating: Boiler; Forced Air
Lease Details: Gross
Lock Box Type: None
On Site Utilities: Electric Common; Heating Common; Hot Water Common
Parking Characteristics: Paved Lot
Rental License Type: Standard
Road Frontage: City Street; Paved Streets
Sewer: City Sewer/Connected
Tenant Pays: Broadband
Water: City Water/Connected
Listing Office: Andrew Yaggie Real Estate
Last Updated: December - 22 - 2025
The data relating to real estate for sale on this web site comes in part from the Broker Reciprocity SM Program of the Regional Multiple Listing Service of Minnesota, Inc. The information provided is deemed reliable but not guaranteed. Properties subject to prior sale, change or withdrawal. ©2024 Regional Multiple Listing Service of Minnesota, Inc All rights reserved.
