$28
Rochester, MN 55906
MLS# 6334484
Status: Closed
1 baths

1 / 15















Property Description
This stand alone building is the perfect place for you to build your business! Current tenant will be vacating on May 31st 2023 making this building available to you. The building features broadway signage and visibility to over 21,000 Cars Per Day. The building has been built for a salon type business for many years. The opportunity to build other types of business here are very possible. Pylon sign on the corner with front door parking for all of your customers. Come and take a tour today for a closer look into your new space.
Details
Maps
Contract Information
Status: Closed
Off Market Date: 2023-12-18
Current Price: $28
Closed Date: 2023-12-18
Sales Close Price: 28
Original List Price: 28
Contingency: None
ListPrice: 28
List Date: 2023-02-21
Owner is an Agent?: No
Auction?: No
General Property Information
Lot Measurement: Acres
Multiple PIDs?: No
Other Parking Spaces: 20
Owner Occupied: No
Year Built: 1951
Yearly/Seasonal: Yearly
Zoning: Business/Commercial
Baths Total: 1
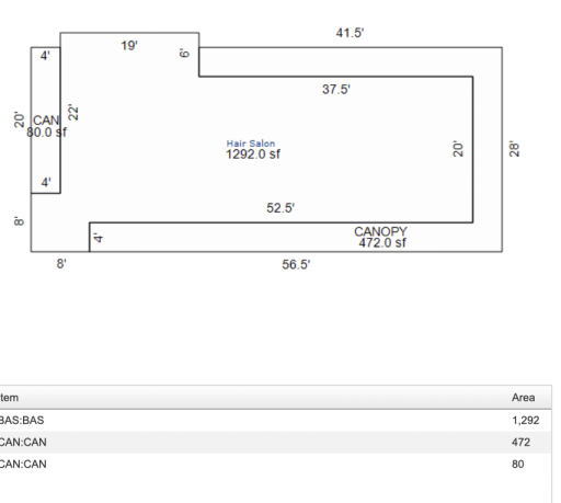
Foundation Size: 1292
For Sale or Lease: For Lease
Acres: 0.3
Lot Dimensions: 134 x 95
Location Tax and Other Information
House Number: 1600
Street Name: Broadway
Street Suffix: Avenue
Street Direction Suffix: N
Postal City: Rochester
County: Olmsted
State: MN
Zip Code: 55906
Complex/Dev/Subdivision: Igos Add
Assessments
Tax With Assessments: 6404
Basement
Foundation Dimensions: 52 x 22
Building Information
Building Finished SqFt: 1292
Building SqFt: 1292
Income and Expenses
Annual Insurance Expense: 2000
Lease Details
Land Leased: Not Applicable
Lease Amount Type: Square Foot
Lease Expiration Date: 2023-05-31
Miscellaneous Information
Homestead: No
Ownership
Fractional Ownership: No
Public Survey Info
Range#: 14
Section#: 26
Township#: 107
Sale Options
Sale Includes: Other
Unit Details
Total Units: 1
Property Features
Accessible: Partially Wheelchair
Air Conditioning: Central Air
CMU Style: Freestanding
Construction Status: Previously Owned
Current Use: Beauty/Barber Shop
Exterior: Block
Fuel: Natural Gas
Heating: Forced Air
Lease Details: Triple Net
Location Description: Free Standing
Lock Box Type: None
Lot Description: Corner Lot
On Site Utilities: Electric Separate; Heating Separate; Hot Water Separate
Parking Characteristics: Paved Lot
Potential Use: Lounge/Bar; Office; Professional; Restaurant; Retail
Rental License Type: Other
Roof: Flat
Sewer: City Sewer/Connected
Tenant Pays: All Utilities; Electricity; Fuel; Janitorial Service; Lawn; Maintenance/Repair; Snow Removal; Taxes; Trash Collection; Water
Water: City Water/Connected
Listing Office: Realty Growth Inc.
Last Updated: August - 07 - 2025

The data relating to real estate for sale on this web site comes in part from the Broker Reciprocity SM Program of the Regional Multiple Listing Service of Minnesota, Inc. The information provided is deemed reliable but not guaranteed. Properties subject to prior sale, change or withdrawal. ©2024 Regional Multiple Listing Service of Minnesota, Inc All rights reserved.