$1,195
Alexandria, MN 56308
MLS# 6468492
Status: Closed

1 / 6
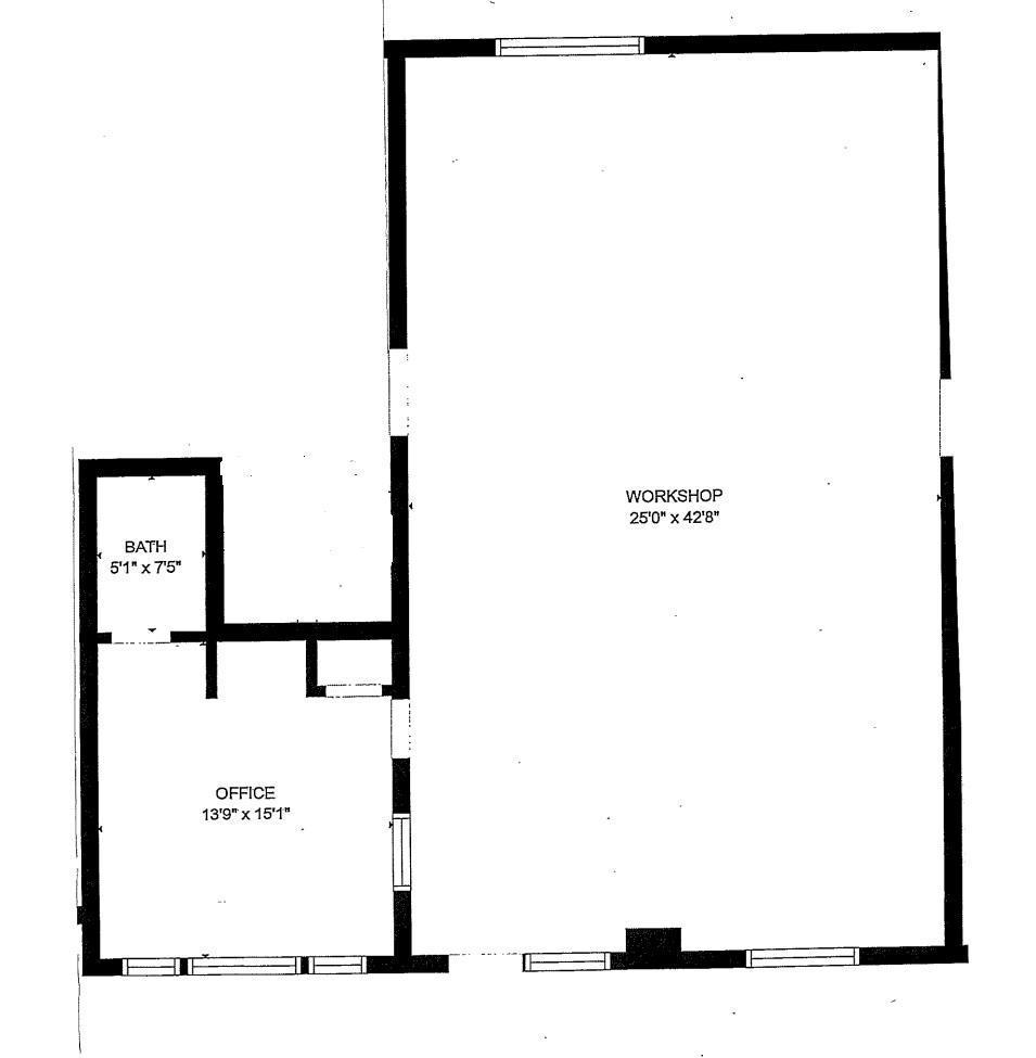
Property Description
Prime location adjacent to Central Business District of Alexandria. Located at corner of Irving and 6th Ave E. Flexible space with workshop/office or use as retail space. Space available is approximately 1300 of main floor space with private business entry on Irving Street. Zoned B-1; Suitable for many types of business. Off-street parking spaces available. Lease term negotiable. Tenant responsible for share of utilities/maintenance.
Details
Maps
Contract Information
Allow Auto Valuation: No
Allow Consumer Comment: No
Owner is an Agent?: Yes
Auction?: No
Status: Closed
Off Market Date: 2024-01-17
Current Price: $1,195
Closed Date: 2024-01-16
Sales Close Price: 1195
Contingency: None
ListPrice: 995
List Date: 2023-12-13
Office/Member Info
Association: SPAAR
MLSID: RMLS
General Property Information
Lot Measurement: Acres
Multiple PIDs?: No
Other Parking Spaces: 2
Owner Occupied: No
Year Built: 1947
Yearly/Seasonal: Yearly
Zoning: Business/Commercial
Lot Dimensions: 75x80
Acres: 0.14
Foundation Size: 1300
Lot Size SqFt: 6098.4
Garage Stalls: 0
Power Company: Alexandria Light & Power
For Sale or Lease: For Lease
Assessment Pending: Yes
Location, Tax and Other Information
Map Page: 999
Municipality: Alexandria
Rental License?: No
School District: Alexandria
School District Phone: 320-762-2141
Map Coordinate Source: King's Street Atlas
Zip Plus 4: 1346
Property ID Number: 631111000
Tax Year: 2023
Tax Amount: 5637
In Foreclosure?: No
Potential Short Sale?: No
Lender Owned?: No
Directions & Remarks
Public Remarks: Prime location adjacent to Central Business District of Alexandria. Located at corner of Irving and 6th Ave E. Flexible space with workshop/office or use as retail space. Space available is approximately 1300 of main floor space with private business entry on Irving Street. Zoned B-1; Suitable for many types of business. Off-street parking spaces available. Lease term negotiable. Tenant responsible for share of utilities/maintenance.
Directions: West Side of Irving Street, just south of 6th Ave E
Accessible
None: 1
Assessments
Assessment Balance: 491
Tax With Assessments: 6128
Basement
Storage Space: 1
Building Information
Building Finished SqFt: 1300
Building SqFt: 1300
Construction Materials
Brick: 1
Concrete: 1
Construction Status
Previously Owned: 1
Exterior
Brick/Stone: 1
Fencing
None: 1
Fuel
Natural Gas: 1
Heating
Boiler: 1
Lease Details
Land Leased: Not Applicable
Gross: 1
Other: 1
Lease Amount Type: Yearly
Lock Box Type
Combo: 1
Lot Description
Corner Lot: 1
Miscellaneous Information
Building Sign: 1
FIPS Code: 27041
Homestead: No
Owner Pays
Insurance: 1
Taxes: 1
Ownership
Fractional Ownership: No
Parking Characteristics
Assigned: 1
Driveway - Shared: 1
Uncovered/Open: 1
Pool Description
None: 1
Public Survey Info
Range#: 37
Section#: 19
Township#: 128
Road Frontage
City Street: 1
Road Responsibility
Public Maintained Road: 1
Roof
Flat: 1
Sale Options
Sale Includes: Building
Sewer
City Sewer/Connected: 1
Unit Details
Total Units: 1
Water
City Water/Connected: 1
Tenant Pays
Electricity: 1
Fuel: 1
Insurance: 1
Janitorial Service: 1
Other: 1
Trash Collection: 1
On Site Utilities
Electric Common: 1
Heating Common: 1
CMU Style
Office: 1
Other: 1
Retail/Shopping Center: 1
Warehouse: 1
Current Use
Commercial: 1
Office: 1
Other: 1
Professional Service: 1
Retail: 1
Storage Facility: 1
Floor Description
Carpet: 1
Concrete Slab: 1
Loan Terms
Cash: 1
Location Description
Downtown: 1
Location Tax and Other Information
House Number: 604
Street Name: Irving
Street Suffix: Street
Unit Number: A
Postal City: Alexandria
County: Douglas
State: MN
Zip Code: 56308
Complex/Dev/Subdivision: Original Alexandria
Property Features
Accessible: None
Basement: Storage Space
CMU Style: Office; Other; Retail/Shopping Center; Warehouse
Construction Materials: Brick; Concrete
Construction Status: Previously Owned
Current Use: Commercial; Office; Other; Professional Service; Retail; Storage Facility
Exterior: Brick/Stone
Fencing: None
Floor Description: Carpet; Concrete Slab
Fuel: Natural Gas
Heating: Boiler
Lease Details: Gross; Other
Loan Terms: Cash
Location Description: Downtown
Lock Box Type: Combo
Lot Description: Corner Lot
Miscellaneous Information: Building Sign
On Site Utilities: Electric Common; Heating Common
Owner Pays: Insurance; Taxes
Parking Characteristics: Assigned; Driveway - Shared; Uncovered/Open
Pool Description: None
Road Frontage: City Street
Road Responsibility: Public Maintained Road
Roof: Flat
Sewer: City Sewer/Connected
Tenant Pays: Electricity; Fuel; Insurance; Janitorial Service; Trash Collection; Other
Water: City Water/Connected
Listing Office: Edina Realty, Inc.
Last Updated: June - 08 - 2025
The data relating to real estate for sale on this web site comes in part from the Broker Reciprocity SM Program of the Regional Multiple Listing Service of Minnesota, Inc. The information provided is deemed reliable but not guaranteed. Properties subject to prior sale, change or withdrawal. ©2024 Regional Multiple Listing Service of Minnesota, Inc All rights reserved.
