$20,900
Pine River, MN 56474
MLS# 4296947
Status: Closed

1 / 5
Property Description
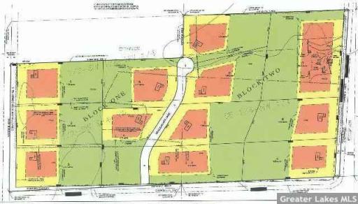
Choose your 5 acre parcel to build your new dream home in the country, located between Crosslake & Pine River & near the Whitefish Chain of Lakes. Some lots have a nice mix of trees, some have paved road, some have an open lot...your choice. The building envelopes are large, with plenty of room for landscaping/gardening or kids' play area. There’s a large border to plant shrubs, trees, or bushes, all to provide privacy & space. Covenants are minimal & designed to protect your investment.
Details
Maps
Contract Information
Availability: Available
Maximum Price: 28900
Minimum Price: 18500
Owner is an Agent?: No
Auction?: No
Status: Closed
Off Market Date: 2022-10-24
Contingency: None
Current Price: $20,900
Closed Date: 2022-10-21
Original List Price: 34900
Sales Close Price: 20900
ListPrice: 20900
List Date: 2010-07-16
Office/Member Info
Association: GLAR
MLSID: RMLS
General Property Information
Association Fee Frequency: N/A
Comp Sale YN: Yes
Development: Yes
Lot Measurement: Acres
Multiple PIDs?: No
Plat Recorded: Yes
Yearly/Seasonal: Yearly
Zoning: Residential-Single Family
Lot Dimensions: 340x665x340x665
Acres: 4.96
Association Fee: 0
Location, Tax and Other Information
AssocFeeYN: No
Listing City: Pine River
Map Page: 999
Municipality: Pine River
Rental License?: No
School District: Pine River-Backus
School District Phone: 218-587-4720
Map Coordinate Source: RETS
Country: US
Property ID Number: 921000020060009
Tax Year: 2022
Tax Amount: 112
In Foreclosure?: No
Potential Short Sale?: No
Lender Owned?: No
Directions & Remarks
Public Remarks: Choose your 5 acre parcel to build your new dream home in the country, located between Crosslake & Pine River & near the Whitefish Chain of Lakes. Some lots have a nice mix of trees, some have paved road, some have an open lot...your choice. The building envelopes are large, with plenty of room for landscaping/gardening or kids' play area. There’s a large border to plant shrubs, trees, or bushes, all to provide privacy & space. Covenants are minimal & designed to protect your investment.
Directions: From Nisswa, N on 371 to Jenkins, Rt. on 15 to CSAH 1, Rt. on #1 for 2 & 3/4 miles, to Rt. on Evergreen Way, follow half mile, around the corner to second lot on left.
Acreage Information
Maximum Acres: 4.96
Minimum Acres: 4.96
Assessments
Assessment Balance: 0
Tax With Assessments: 112
Builder Information
Builder Restrictions: Open
Development Status
Subdivided: 1
Financing Terms
Cash: 1
Insurance Fee
Insurance Fee: 0
Insurance Fee Frequency: N/A
Lease Details
Land Leased: Not Applicable
Monthly Land Lease Amt: 0
Lock Box Type
None: 1
Lot Description
Irregular Lot: 1
Miscellaneous Information
Homestead: No
Total Lots Available: 12
Total Lots Sold: 2
Ownership
Fractional Ownership: No
Public Survey Info
Range#: 028
Section#: 33
Township#: 138
Restriction/Covenants
Architecture Committee: 1
Other Covenants: 1
Road Frontage
Unpaved Streets: 1
Sellers Terms
Cash: 1
Contract for Deed: 1
Conventional: 1
Other: 1
Topography
Level: 1
Rolling: 1
Available Utilities
Electricity Available: 1
Electricity Connected: 1
Phone Available: 1
Phone Connected: 1
Dimension Information
Front Dim: 340
Left Dim: 665
Lot Size Min: 5
Rear Dimensions: 340
Right Dim: 665
Improvements
Unimproved Streets: 1
Land Inclusions
Abstract: 1
For Sale Sign: 1
Platted: 1
Survey: 1
Location Tax and Other Information
House Number: L6 B2
Street Name: Evergreen
Street Suffix: Way
Postal City: Pine River
County: Crow Wing
State: MN
Zip Code: 56474
Complex/Dev/Subdivision: Whitefish Meadows
Property Features
Available Utilities: Electricity Available; Electricity Connected; Phone Available; Phone Connected
Development Status: Subdivided
Financing Terms: Cash
Improvements: Unimproved Streets
Land Inclusions: Abstract; For Sale Sign; Platted; Survey
Lock Box Type: None
Lot Description: Irregular Lot
Road Frontage: Unpaved Streets
Sellers Terms: Cash; Contract for Deed; Conventional; Other
Topography: Level; Rolling
Listing Office: Positive Realty
Last Updated: May - 27 - 2025
The data relating to real estate for sale on this web site comes in part from the Broker Reciprocity SM Program of the Regional Multiple Listing Service of Minnesota, Inc. The information provided is deemed reliable but not guaranteed. Properties subject to prior sale, change or withdrawal. ©2024 Regional Multiple Listing Service of Minnesota, Inc All rights reserved.
